2813 S Indiana, Caldwell, ID

$1,999,990

Previous Next

1

Square foot

3.89

Acres

About 2813 S Indiana

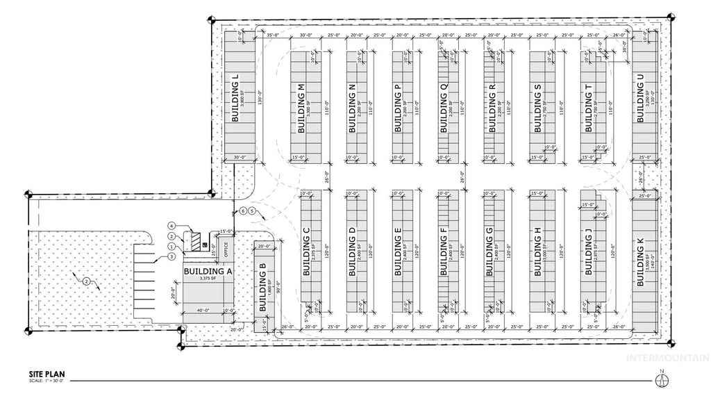
Discover an extraordinary investment opportunity on 3.89 acres in the heart of Caldwell. Fully approved 419 enclosed storage units, 3 versatile flex units, and an on-site house—perfect for a manager's residence or office. The diverse unit mix caters to personal, business, and specialty storage needs, ensuring high demand in a rapidly growing area. Based on conservative assumptions, at an 8% cap rate the stabilized value is projected to be around $4.9 million. Under more favorable market conditions (a 6% cap rate), the value could exceed $6.55 million.With all approvals in place, you’ll save time and effort, accelerating your path to profitability. Strategically located in Caldwell, a city experiencing robust growth and rising demand for secure, convenient storage, this property offers investors a rare chance to own a high-performing asset.

Features of 2813 S Indiana

MLS® # 98931690
Price $1,999,990
Square Footage 1
Acres 3.89
Type Commercial Sale
Status Active

Community Information

Address 2813 S Indiana
Area Caldwell SW - 1280
City Caldwell
County Canyon
State ID
Zip Code 83605

Amenities

Is Waterfront No
Has Pool No

Interior

Fireplace No

Exterior

Lot Description 1 - 4.99 Acres

Additional Information

Date Listed December 21st, 2024
Days on Market 277
Foreclosure No
Short Sale No
RE / Bank Owned No

Listing Details

OfficeMountain Realty
Contact Infopdoughty@idahomountainrealty.com

Listing Map

Request a Showing

Provide a valid email address.
When would you like to view this property?